L’éco-quartier de l’Union

L’éco-quartier de l’Union

Situé au cœur de la Métropole Européenne de Lille, l’Eco-quartier de l’Union s’étend à la croisée de trois villes : Roubaix, Tourcoing et Wattrelos.

Autrefois à dominante industrielle, ce site de 80 ha est aujourd’hui en friches pour l’essentiel. Dans une recherche permanente d’innovation et de durabilité, et en phase avec les principes de la ville mixte, intense et évolutive, l’enjeu est d’inventer un véritable « morceau de ville » et de le relier au tissu urbain existant.

Le projet d’aménagement de l’Union vise à développer un quartier porteur d’un nouveau dynamisme économique, avec près de 6000 salariés au sein des pôles d’excellence dédiés à l’image et aux textiles innovants et de nouvelles activités économiques (sièges d’entreprises, services, PME PMI). 

Il prévoit également la construction de commerces, d’équipements et de 1 400 logements neufs où sont attendus plus de 3 000 habitants.

C’est un projet au long cours, engagé dès les années 1990, qui fait l’objet d’une concession publique d’aménagement contractée pour une durée de 15 ans (2007-2022).

Un Eco-quartier, c’est quoi ?

Un Eco-quartier est un projet d’aménagement urbain qui respecte les principes du développement durable tout en s’adaptant aux caractéristiques de son territoire.

Les acteurs du projet

  • Les acteurs publics : la Métropole Européenne de Lille, les Villes de Tourcoing, Roubaix et Wattrelos.
  • L’aménageur, titulaire de la concession publique d’aménagement : la SEM Ville Renouvelée
  • Les concepteurs : le groupement constitué du cabinet OBRAS (architectes-urbanistes), Atelier Georges (paysagistes), Mageo (Bureau d’études technique) et Concepto (éclairagiste).
  • Pour la Plaine Images : Pierre Gangnet (architecte-urbaniste), Paysages (paysagiste), 8’18‘’ (éclairagiste), Atelier télescopique (design graphique), Strate (Bureau d’études technique).
  • Les usagers et acteurs privés : Plaine Images Développement, le club des partenaires de l’Union, le collectif des entrepreneurs de l’Union : Trait d’Union.

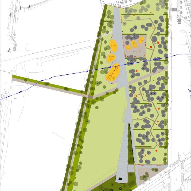
Le parc comprend trois vastes espaces :

LA PLAINE

Située au Nord de la rue de l’Union, la plaine est composée de différentes ambiances répondant à la diversité des publics. Un vaste espace libre permet la pratique sportive et les jeux de plein air. Il se termine par un « belvédère » offrant une vue splendide vers un vaste paysage urbain. Une table d’orientation contextualisée à la disposition du visiteur, l’informera des sites emblématiques et historiques du quartier, visible depuis ce point de vue. Vous y découvrirez aussi l’arboretum, où 155 arbres ont été plantés en 2015. Il représente une grande variété d’essences, permettant de flâner ou se détendre en profitant d’espaces ombragés. Enfin, les aires de jeux pour enfants, qui seront regroupés dans un espace sécurisé pour les jeux des 2 à 6 ans, et disposés sur des « îles » ouvertes, laissant une plus grande liberté de mouvement, pour les enfants de 6 à 12 ans. Le chantier des aires de jeux
débutera courant mars pour être finalisé à l’ouverture du parc.

LE DRAPÉ

Cette partie relie la rue de l’Union au Canal de Roubaix. On y découvrira deux marais, qui sont une véritable invitation à la découverte de la biodiversité. Pour l’instant, seul le « Marais préservé » est aménagé. Deux promontoires, disposés le long de la promenade du canal, facilitent l’observation de la nature. Les travaux de l’autre bassin, nommé « marais fréquenté » débuteront fin 2020 par la dépollution du site. L’achèvement des aménagements paysagers est prévu en 2022.

LES QUAIS

Le long du canal, sur une étendue de 1,4 km (reliant les villes de Tourcoing, Roubaix et Wattrelos et plus loin la Belgique), un espace de promenade a été pensé pour les piétons et cyclistes.

QUELQUES CHIFFRES :

La plaine :

  • 2,7 Ha
  • 155 arbres pour l’arboretum
  • et 195 pour le reste de la plaine

Deux marais :

  • Le marais préservé et le quai Est représentent 2,3 Ha et 195 arbres
  • Le marais fréquenté et le quai Ouest représentent 2,9 Ha et 245 arbres (prévision)
    La partie prolongeant le marais fréquenté vers l’Ouest, face au CETI, préservée de toute intervention, représente environ 2 Ha.

L'opération PL7-8 dans le quartier de l'Union

Le projet d’aménagement a été initié par la Métropole européenne de Lille, pour le compte de celle-ci ainsi que des communes de Roubaix, Tourcoing et Wattrelos. Le projet de l’Union est porté par la SEM ville renouvelée, aménageur en co-construction entre l’aménageur et les promoteurs. L’opération PL7-8 a trouvé sa “forme urbaine” grâce à un Workshop chargé d’identifier l’équipe promoteur-concepteur en capacité de relevé le défi de la première phase de logements du quartier du Parc de l’Union. 

L’équipe de maîtrise est constituée des entreprises KOZ architectes, O architectures, Les Saprophytes, OPTI-BAT, et créations bois accompagnées du promoteur Icade Promotion et Notre logis. Ils sont lauréats du Workshop initié en 2018 mettant en concurrence 13 équipes de concepteurs pour la première phase, puis 5 équipes pour la seconde phase dans un esprit de partage, de dialogue et expérimentation. Leur projet est intitulé « Habiter l’Union, habiter le ciel, habiter le parc », tout un programme pour de nouveaux lieux d’habitation qui se déploieront « du parc au jardin »

  • Des habitats diversifiés destinés aux actifs de la Plaine Images et du secteur de l’Union ; 
  • Implanter des bâtis échelonnés ; 
  • Forte dimension paysagère et écologique laissant place à des patios et jardinets privatifs, parking mutualisé… ; 
  • Utilisation d’innovation technique. 

 

Au total, c’est 233 logements dont 193 collectifs et 30 maisons de ville qui se bâtissent avec 164 en accession et 66 en locatif social.

La phase de travaux est prévue entre 2021 à 2023, avec un démarrage des travaux depuis le 7 mai 2021. La livraison du chantier aura lieu le 1er et 3ème trimestre 2023.